内階段式ローリングタワー
日工セックのレンタル商品「ローリングタワー」に、新しいパーツが加わりました。現在ご使用の「ローリングタワー」の内側に昇降階段やハッチ足場板を取り付けるだけで、枠内を昇降できるため、さまざまな現場における足場の危険度が解消されます。これにより、安全でかつスムーズに合理的に昇降することが出来る優れものです。
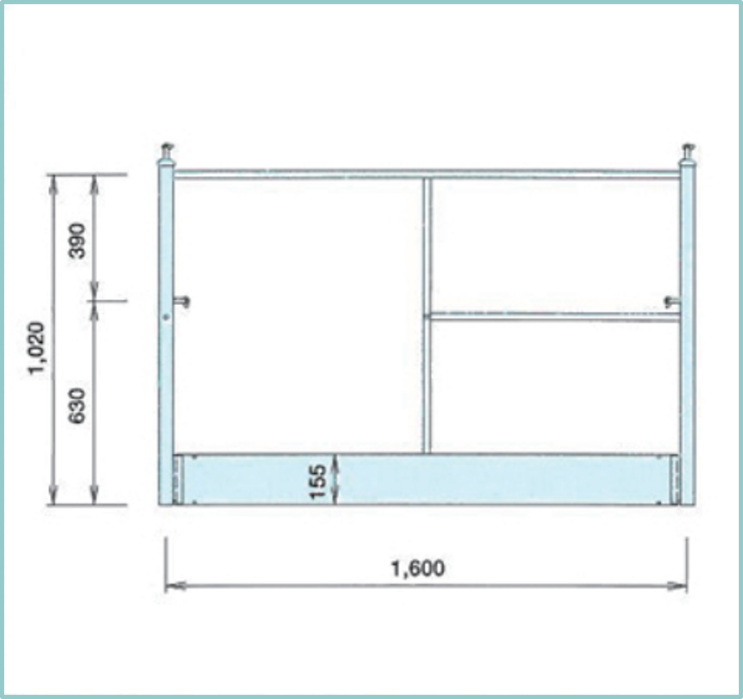
ローリングタワー手すりサイズ

“足場”に携わる方必見
私たち日工セックは、お客様との深い関わりの中から汲み取った、斜面や法面などの現場ニーズを元にし、独自のノウハウと経験を活かした安全で便利な仮設機材の設計開発・製造・レンタルを行って状況に応じた柔軟な足場設計から安全管理まで、建築現場をトータルでサポートいたします。建築・土木工事に関わる法面・斜面への階段・足場のレンタルは私たち日工セックにお任せください。
ラクラクタワーの種類
昇降階段の段数が1段の場合
| 高さ | 1.8~2.0(m) |
|---|---|
| 面積 | 1.8×1.6(m) |
昇降階段の段数が2段の場合
| 高さ | 3.3~3.5(m) |
|---|---|
| 面積 | 1.8×1.6(m) |
昇降階段の段数が3段の場合
| 高さ | 4.9~5.1(m) |
|---|---|
| 面積 | 1.8×1.6(m) |
昇降階段の段数が4段の場合
| 高さ | 6.5~6.8(m) |
|---|---|
| 面積 | 1.8×1.6(m) |
昇降階段の段数が5段の場合
| 高さ | 8.2~8.4(m) |
|---|---|
| 面積 | 1.8×1.6(m) |
昇降階段の段数が6段の場合
| 高さ | 9.8~10.0(m) |
|---|---|
| 面積 | 1.8×1.6(m) |
足場レンタル商品「ラクラクタワー」の使用上の注意
- 車輪ブレーキの効き具合、タイヤの損傷などを確認してください。
- ラクラクタワー移動中以外は必ずブレーキをかけてください。
- ラクラクタワー作業床上で、脚立・梯子などは使わないでください。
- 作業員を乗せたままラクラクタワーを移動しないでください。
- ラクラクタワー5段以上で使用される場合は、併設のレンタル商品控え枠を設けてください。
- 作業箇所に最も接近した位置にラクラクタワーを設置してください。
日工セックへのお問い合わせはこちら
レンタル主力商品
足場を用いる様々な現場で、とても重要視される法面・斜面への階段や足場。これら足場機材のレンタルなら私たち日工セックにお任せください。階段や足場のレンタルをはじめ、仮設機材のレンタルの総合メーカーとして、全力で皆様の現場をサポートをさせて頂きます。
よく読まれている記事
日工セックについて
避難通路(本設階段)
足場・階段・仮設機材のレンタルはおまかせください!
私たち日工セックは、お客様との深い関わりの中から汲み取った、斜面や法面などの現場ニーズを元にし、独自のノウハウと経験を活かした安全で便利な仮設機材の設計開発・製造・レンタルを行って状況に応じた柔軟な足場設計から安全管理まで、建築現場をトータルでサポートいたします。
関連法人のご紹介
| 日工グループ |
日工株式会社 トンボ工業株式会社 日工電子工業株式会社 日工マシナリー株式会社 日工興産株式会社 日工(上海)工程机械有限公司 株式会社前川工業所 宇部興機株式会社 株式会社松田機工 Nikko Asia (Thailand) Co.,Ltd. Nikko Globa Manufacturing(Thailand) Co.,Ltd. 株式会社西日本不動産 |
|---|












